- MARKETED BY PAUL GRAHAM.
- Guide Price £325,000 - £335,000
- No Onward Chain
- Modern Kitchen And Bathroom
- Southerly Aspect Private Garden
- Off-Road Parking With Two Allocated Spaces
- 189 Year Lease With No Service Charge
- Convenient Location Close To Schools And Transport
Full Description
Guide Price £325,000 - £335,000. Offered to the market with no onward chain, this attractive ground floor maisonette is presented in good condition throughout and offers well-balanced accommodation ideal for a range of buyers. The ground floor features a welcoming entrance hall with useful storage, a bright and comfortable lounge, and a modern fitted kitchen with integrated appliances. To the rear, a sun room / conservatory provides an excellent additional living space, enjoying views and direct access onto the garden.
Additionally, the property offers two generous double bedrooms and a contemporary shower room finished to a modern standard. The layout is practical and well thought out, allowing buyers to move straight in while still offering scope to personalise.
The property is well positioned within a popular residential area, offering easy access to local shops, amenities and well-regarded schools. Carshalton station is within walking distance, making this an ideal choice for commuters. The surrounding area is known for its community feel and everyday convenience, appealing to first-time buyers, downsizers and investors alike.
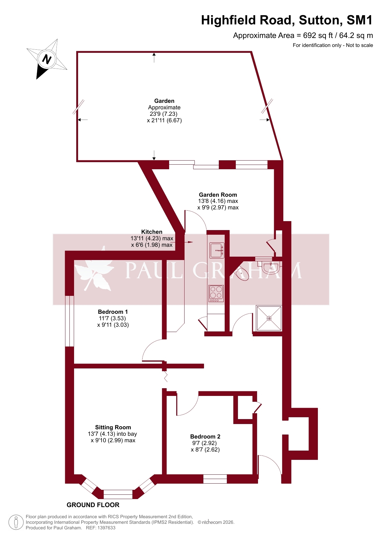
ENTRANCE HALL
SITTING ROOM 13' 7" x 9' 10" (4.14m x 3m)
KITCHEN 13' 11" x 6' 6" (4.24m x 1.98m)
GARDEN ROOM 13' 8" x 9' 9" (4.17m x 2.97m)
BEDROOM 1 11' 7" x 9' 11" (3.53m x 3.02m)
BEDROOM 2 9' 7" x 8' 7" (2.92m x 2.62m)
BATHROOM
GARDEN 23' 9" x 21' 11" (7.24m x 6.68m)
OFF ROAD PARKING
LONG LEASE
NO ONWARD CHAIN
Viewing
Please contact us on 020 8773 7200 if you wish to arrange a viewing appointment for this property, or require further information.
Disclaimer
Paul Graham endeavour to maintain accurate depictions of properties in Virtual Tours, Floor Plans and descriptions, however, these are intended only as a guide and purchasers must satisfy themselves by personal inspection.
Additionally, the property offers two generous double bedrooms and a contemporary shower room finished to a modern standard. The layout is practical and well thought out, allowing buyers to move straight in while still offering scope to personalise.
The property is well positioned within a popular residential area, offering easy access to local shops, amenities and well-regarded schools. Carshalton station is within walking distance, making this an ideal choice for commuters. The surrounding area is known for its community feel and everyday convenience, appealing to first-time buyers, downsizers and investors alike.
ENTRANCE HALL
SITTING ROOM 13' 7" x 9' 10" (4.14m x 3m)
KITCHEN 13' 11" x 6' 6" (4.24m x 1.98m)
GARDEN ROOM 13' 8" x 9' 9" (4.17m x 2.97m)
BEDROOM 1 11' 7" x 9' 11" (3.53m x 3.02m)
BEDROOM 2 9' 7" x 8' 7" (2.92m x 2.62m)
BATHROOM
GARDEN 23' 9" x 21' 11" (7.24m x 6.68m)
OFF ROAD PARKING
LONG LEASE
NO ONWARD CHAIN
Viewing
Please contact us on 020 8773 7200 if you wish to arrange a viewing appointment for this property, or require further information.
Disclaimer
Paul Graham endeavour to maintain accurate depictions of properties in Virtual Tours, Floor Plans and descriptions, however, these are intended only as a guide and purchasers must satisfy themselves by personal inspection.

