- Extended Semi Detached Family House
- Close by to Stations and Local Amenities
- Large Open Plan Ground Floor
- Modern Fitted Kitchen with Separate Utility Room
- Two Shower Rooms
- Driveway Parking
- Large Garden
- A 'Stones Throw' From Beddington Park
Full Description
An attractive and well presented extended three bedroom semi detached house, ideally located directly opposite Beddington Park and within easy reach of local train stations, making it perfect for families and commuters alike.
The property has been thoughtfully extended on the ground floor to create a bright and spacious open plan living area, ideal for modern family life and entertaining. The accommodation flows seamlessly and offers flexible living and dining space with plenty of natural light. There is also modern kitchen, separate utility room and Wc.
Upstairs, boasts three good size bedrooms and a modern shower room. Externally, the property benefits from off street driveway parking and a large rear garden with ample outdoor space for entertaining.
Situated in a highly desirable location, being close to transport links, schools, and local amenities.
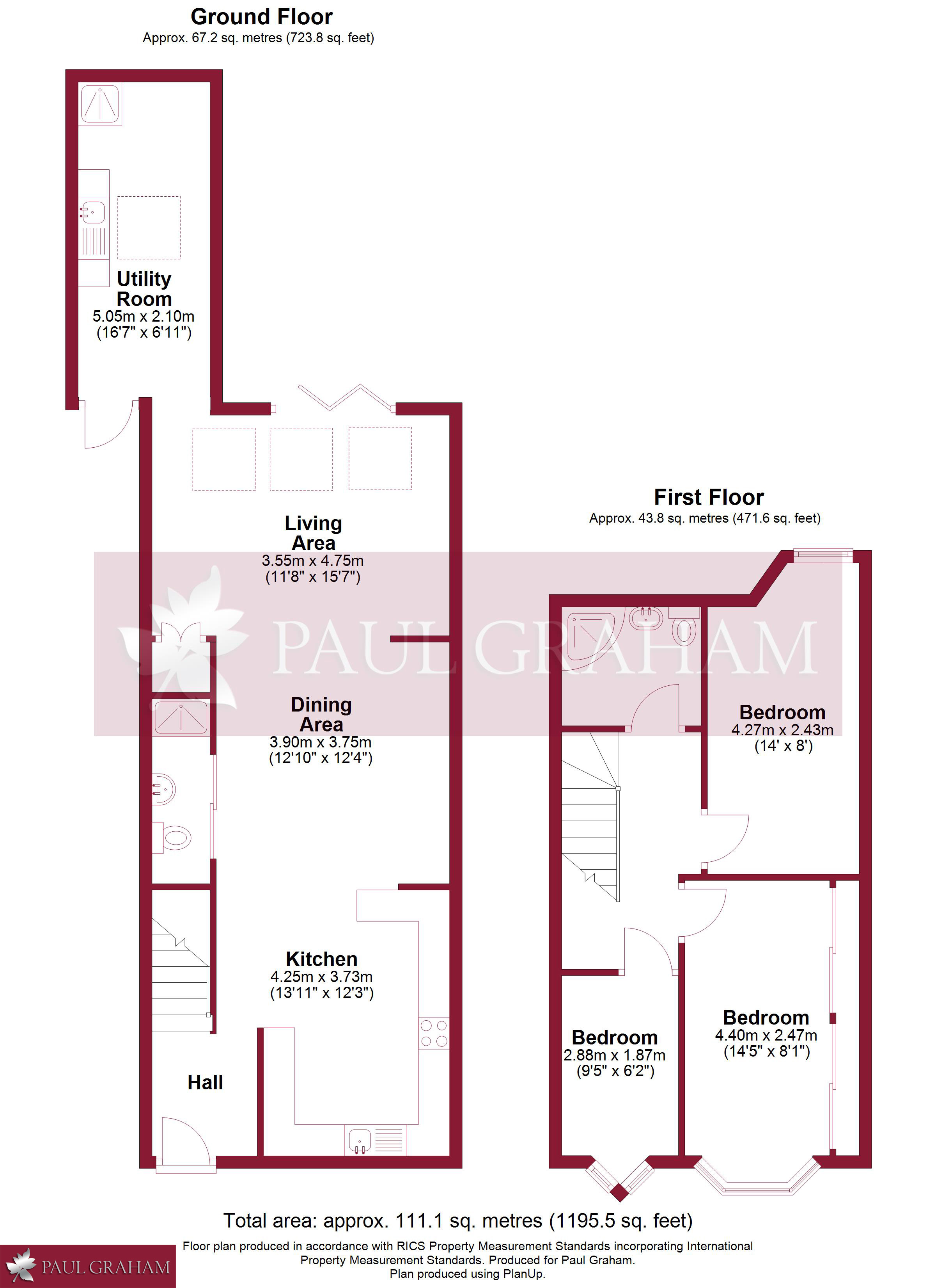
ENTRANCE HALL
LIVING ROOM 15' 7" x 11' 8" (4.75m x 3.56m)
DINING AREA 12' 10" x 12' 4" (3.91m x 3.76m)
KITCHEN 13' 11" x 12' 3" (4.24m x 3.73m)
UTILITY ROOM/SHOWER AREA 16' 7" x 6' 11" (5.05m x 2.11m)
WC
STAIRS TO FIRST FLOOR
LANDING
BEDROOM 1 14' 8" x 8' 1" (4.47m x 2.46m)
BEDROOM 2 14' x 8' (4.27m x 2.44m)
BEDROOM 3 9' 5" x 6' 2" (2.87m x 1.88m)
SHOWER ROOM
LARGE REAR GARDEN
DRIVEWAY PARKING
CLOSE TO BEDDINGTON PARK
Viewing
Please contact us on 020 8669 5201 if you wish to arrange a viewing appointment for this property, or require further information.
Disclaimer
Paul Graham endeavour to maintain accurate depictions of properties in Virtual Tours, Floor Plans and descriptions, however, these are intended only as a guide and purchasers must satisfy themselves by personal inspection.
The property has been thoughtfully extended on the ground floor to create a bright and spacious open plan living area, ideal for modern family life and entertaining. The accommodation flows seamlessly and offers flexible living and dining space with plenty of natural light. There is also modern kitchen, separate utility room and Wc.
Upstairs, boasts three good size bedrooms and a modern shower room. Externally, the property benefits from off street driveway parking and a large rear garden with ample outdoor space for entertaining.
Situated in a highly desirable location, being close to transport links, schools, and local amenities.
ENTRANCE HALL
LIVING ROOM 15' 7" x 11' 8" (4.75m x 3.56m)
DINING AREA 12' 10" x 12' 4" (3.91m x 3.76m)
KITCHEN 13' 11" x 12' 3" (4.24m x 3.73m)
UTILITY ROOM/SHOWER AREA 16' 7" x 6' 11" (5.05m x 2.11m)
WC
STAIRS TO FIRST FLOOR
LANDING
BEDROOM 1 14' 8" x 8' 1" (4.47m x 2.46m)
BEDROOM 2 14' x 8' (4.27m x 2.44m)
BEDROOM 3 9' 5" x 6' 2" (2.87m x 1.88m)
SHOWER ROOM
LARGE REAR GARDEN
DRIVEWAY PARKING
CLOSE TO BEDDINGTON PARK
Viewing
Please contact us on 020 8669 5201 if you wish to arrange a viewing appointment for this property, or require further information.
Disclaimer
Paul Graham endeavour to maintain accurate depictions of properties in Virtual Tours, Floor Plans and descriptions, however, these are intended only as a guide and purchasers must satisfy themselves by personal inspection.

