- Guide Price £300,000 - £315,000.
- Two Bedroom, 1st Floor Maisonette With Loft
- Private Rear Garden
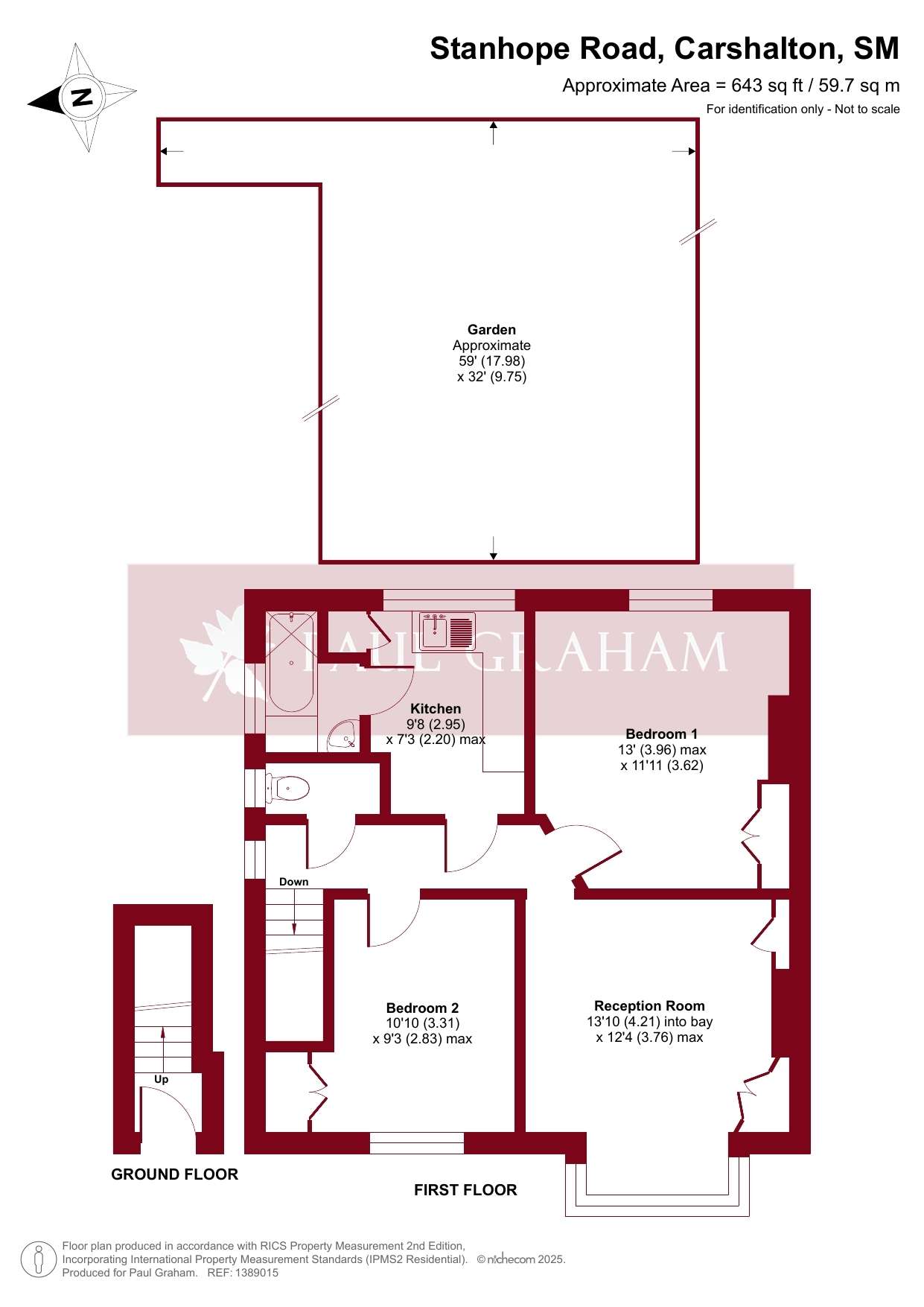
- 643 SQ FT / 59.7 SQ M
- Long Lease: 114 Years
- Close To Good Local Schools
- Walking Distance To Transport
- Quiet Residential Location
- Two Bedrooms
Full Description
Guide Price £300,000 - £325,000. This well-presented two-bedroom first-floor maisonette offers bright and well-balanced accommodation extending to approximately 643 sq ft. The property features two generously sized bedrooms, a spacious reception room, a modern fitted kitchen, and the practical benefit of a separate bathroom and WC. Additional advantages include access to loft space and a long lease with approximately 114 years remaining, making it an attractive option for both first-time buyers and investors.
Externally, the property further benefits from a private rear garden, providing a valuable outdoor space rarely found with maisonettes of this type. The home is well maintained throughout and offers excellent scope for comfortable day-to-day living.
Situated on a quiet residential road in Carshalton, the property is ideally positioned within walking distance of local transport links, offering convenient access into Central London and surrounding areas. A range of local shops and amenities are also close by.
The area is particularly well regarded for its good local schools, making it appealing to families, while nearby green spaces and village-style surroundings contribute to Carshalton's enduring popularity.
ENTRANCE HALL
LANDING
RECEPTION ROOM 13' 10" x 12' 4" (4.22m x 3.76m)
KITCHEN 9' 8" x 7' 3" (2.95m x 2.21m)
BEDROOM 1 13' 0" x 11' 11" (3.96m x 3.63m)
BEDROOM 2 10' 10" x 9' 3" (3.3m x 2.82m)
WC
BATHROOM
GARDEN 59' 0" x 32' (17.98m x 9.75m)
LOFT SPACE
LEASE 114 YEARS
Viewing
Please contact us on 020 8773 7200 if you wish to arrange a viewing appointment for this property, or require further information.
Disclaimer
Paul Graham endeavour to maintain accurate depictions of properties in Virtual Tours, Floor Plans and descriptions, however, these are intended only as a guide and purchasers must satisfy themselves by personal inspection.
Externally, the property further benefits from a private rear garden, providing a valuable outdoor space rarely found with maisonettes of this type. The home is well maintained throughout and offers excellent scope for comfortable day-to-day living.
Situated on a quiet residential road in Carshalton, the property is ideally positioned within walking distance of local transport links, offering convenient access into Central London and surrounding areas. A range of local shops and amenities are also close by.
The area is particularly well regarded for its good local schools, making it appealing to families, while nearby green spaces and village-style surroundings contribute to Carshalton's enduring popularity.
ENTRANCE HALL
LANDING
RECEPTION ROOM 13' 10" x 12' 4" (4.22m x 3.76m)
KITCHEN 9' 8" x 7' 3" (2.95m x 2.21m)
BEDROOM 1 13' 0" x 11' 11" (3.96m x 3.63m)
BEDROOM 2 10' 10" x 9' 3" (3.3m x 2.82m)
WC
BATHROOM
GARDEN 59' 0" x 32' (17.98m x 9.75m)
LOFT SPACE
LEASE 114 YEARS
Viewing
Please contact us on 020 8773 7200 if you wish to arrange a viewing appointment for this property, or require further information.
Disclaimer
Paul Graham endeavour to maintain accurate depictions of properties in Virtual Tours, Floor Plans and descriptions, however, these are intended only as a guide and purchasers must satisfy themselves by personal inspection.

